Dorchester, Dorset
- Land & Plot Finder

- Feb 7, 2022
- 1 min read
Updated: Feb 11, 2022
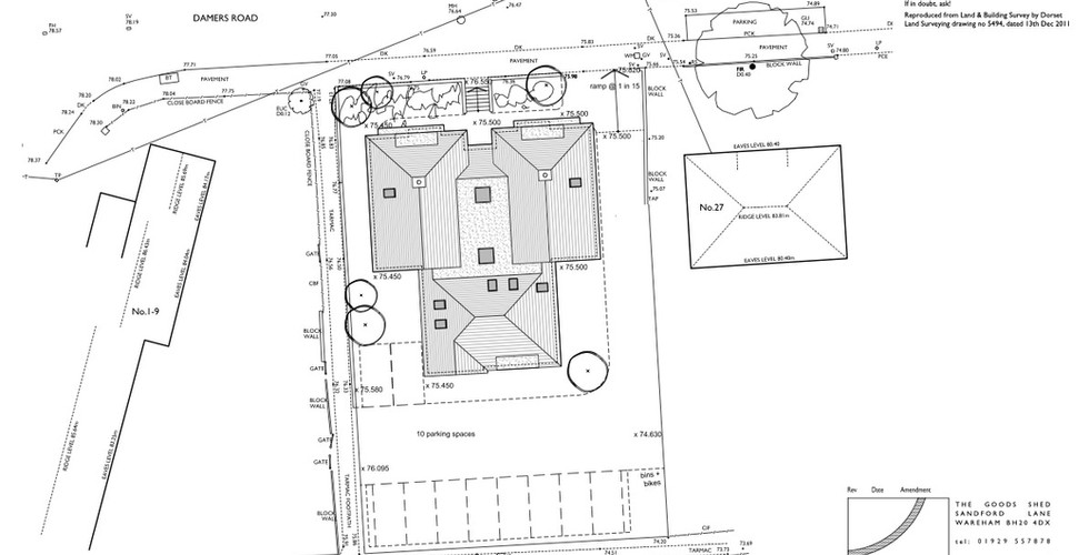
Land & Plot Finder sourced this redundant council owned depot and introduced the site to a developer who constructed 12 luxury flats close to the town centre. The recycling of redundant commercial land and buildings such as this makes a significant contribution towards meeting housing supply.










Comments